
一戸建てResidential-home
売中古住宅(下田市大沢)NEW
- 価格
- 800万円
- 物件種目
- 中古戸建
- 満室時表面利回り
- 12%
- 現行利回り
- %
- 所在地
-
静岡県下田市大沢
売中古住宅(下田市大沢)
- 交通
- 伊豆急行蓮台寺駅 徒歩1800m
| 築年月 | |
|---|---|
| 新築/中古 | |
| 面積 | m² |
| 計測方式 | |
| バルコニー | m² |
| 向き | |
| 建物階数 | |
| 部屋階数 | 階 |
| 部屋/区画番号 | |
| 総戸/区画数 | |
| 建物構造 | |
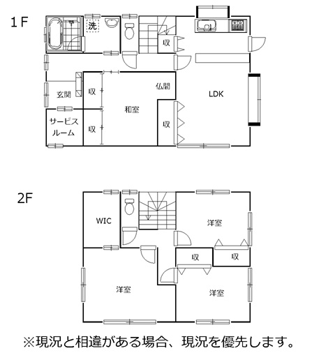
| 間取内容 |
|
| 駐車場 | |
| 地目 | 宅地 |
| 用途地域 | 無指定 |
| 都市計画 | 都市計画区域外 |
| 地勢 | |
| 土地面積 | 1319.00m² |
| 土地面積計測方式 | 公簿 |
| 土地権利 | 所有権 |
| 接道状況 | 一方 |
| 接道方向1 | 東 |
| 接道間口1 | 70m |
| 接道種別1 | 公道 |
| 接道幅員1 | 4.5m |
| 周辺環境 | 市立稲生沢小学校 市立下田中学校 |
| 設備・条件 |
|
※ 物件掲載内容と現況に相違がある場合は現況を優先と致します。

受付時間 9:00 ~ 18:00(日曜定休)











