
一戸建てResidential-home
売中古住宅(富士市宮下)NEW
- 価格
- 1,650万円
- 物件種目
- 中古戸建
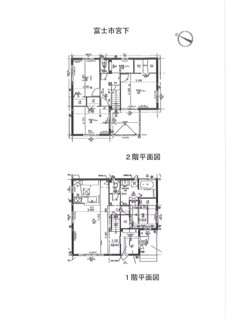
- 間取
- 4SLDK
- 所在地
-
静岡県富士市宮下
売中古住宅(富士市宮下)
- 交通
- JR東海道本線富士駅 徒歩24分
| 築年月 | 201011 |
|---|---|
| 新築/中古 | 中古 |
| 面積 | 107.26m² |
| 計測方式 | 壁芯 |
| バルコニー | m² |
| 向き | |
| 建物階数 | 地上2階 |
| 部屋階数 | 階 |
| 部屋/区画番号 | |
| 総戸/区画数 | |
| 建物構造 | 軽量鉄骨 |
| 建築面積 | 57.25m² |
| 間取内容 |
LDK19.9畳1室 和室3畳1室 洋室7.5畳1室 洋室6畳2室 S1.8畳1室 |
| 駐車場 | |
| 地目 | 宅地 |
| 用途地域 | 第一種中高層住居専用 |
| 都市計画 | 市街化区域 |
| 地勢 | 平坦 |
| 土地面積 | 165.97m² |
| 土地面積計測方式 | 公簿 |
| 建ぺい率 | 60% |
| 容積率 | 150% |
| 土地権利 | 所有権 |
| 接道状況 | 角地 |
| 接道方向1 | 西 |
| 接道間口1 | 12m |
| 接道種別1 | 公道 |
| 接道幅員1 | 4.0m |
| 接道方向2 | 北 |
| 接道間口2 | 12m |
| 接道種別2 | 私道 |
| 接道幅員2 | 4.5m |
| 周辺環境 | 市立富士南小学校 市立富士南中学校 |
| 設備・条件 |
|
※ 物件掲載内容と現況に相違がある場合は現況を優先と致します。

受付時間 9:00 ~ 18:00(日曜定休)


