
土地Land
売土地古家付(駿東郡清水町湯川)
- 価格
- 1,980万円
- 物件種目
- 建付土地
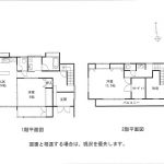
- 間取
- 2LDK
- 所在地
-
静岡県駿東郡清水町湯川
売土地古家付(駿東郡清水町湯川)
- 交通
-
JR東海道本線三島駅 徒歩3500m
バス(清水中学校 乗19分 停歩3分)
| 駐車場 | 空有 |
|---|---|
| 地目 | 宅地 |
| 用途地域 | 第一種中高層住居専用 |
| 都市計画 | 市街化区域 |
| 地勢 | 平坦 |
| 土地面積 | 171.58m² |
| 土地面積計測方式 | 公簿 |
| 建ぺい率 | 60% |
| 容積率 | 150% |
| 土地権利 | 所有権 |
| 接道状況 | 一方 |
| 接道方向1 | 東 |
| 接道間口1 | m |
| 接道種別1 | 公道 |
| 接道幅員1 | 5.2m |
| 国土法届出 | 不要 |
| 周辺環境 | |
| 設備・条件 |
|
※ 物件掲載内容と現況に相違がある場合は現況を優先と致します。

受付時間 9:00 ~ 18:00(日曜定休)












